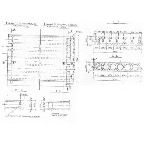
ПЭ 48.12

Чертеж изделия:
Характеристики изделия:
ПараметрЗначение
длина4780 мм
ширина1196 мм
высота220 мм
вес1640 кг
ШифрСК 1223

ПЭ 48.12 Плиты многопустотные безопалубочного формования по Шифру СК 1223.