ПС

Чертеж изделия:
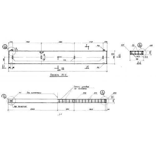
Характеристики изделия:
ПараметрЗначение
длина5980 мм
ширина785 мм
высота200 мм
вес700 кг
серияСТ 02-11/61

ПС Панели по серии СТ 02-11/61.