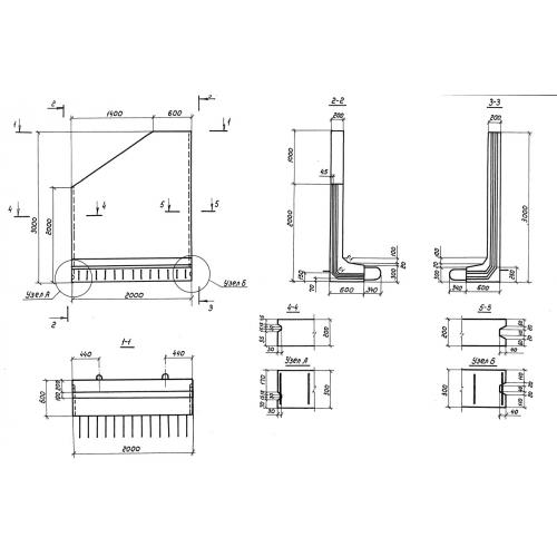
НГ 30

Чертеж изделия:
Характеристики изделия:
ПараметрЗначение
длина2000 мм
ширина930 мм
высота3000 мм
вес3300 кг
серия3.820.1-39

НГ 30 Г-образные конструкции с "ныряющей" вертикальной стенкой многоцелевого назначения по серии 3.820.1-39.