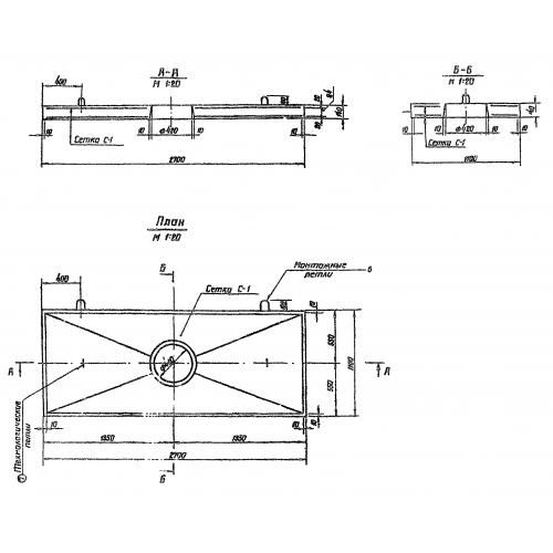
ПУ 3.5-6.0

Чертеж изделия:
Характеристики изделия:
ПараметрЗначение
длина2700 мм
ширина1100 мм
высота140 мм
вес1000 мм
серия3.820-9

ПУ 3.5-6.0 Плиты упорные по серии 3.820-9.