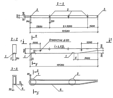
2БН10,5-4

Чертеж изделия:
Характеристики изделия:
ПараметрЗначение
Длина10480 мм
Ширина250 мм
Высота760 мм
Масса4300 кг
Нормативный документСерия 3.019.1-1

2БН10,5-4   Балка навеса по Серии 3.019.1-1.