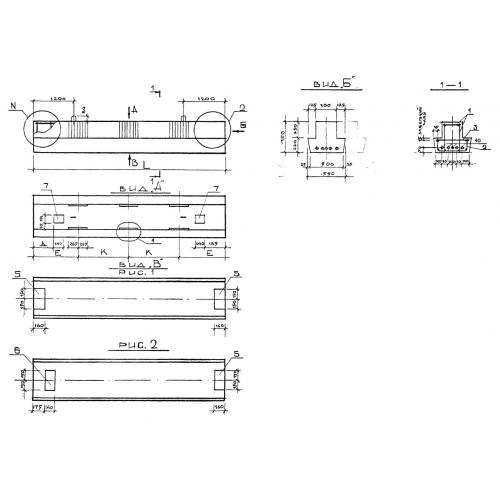
РДС 4.69

Чертеж изделия:
Характеристики изделия:
ПараметрЗначение
длина6830 мм
ширина550 мм
высота450 мм
вес3160 кг
серия1.220.1-2

РДС 4.69 Ригели покрытий по серии 1.220.1-2.