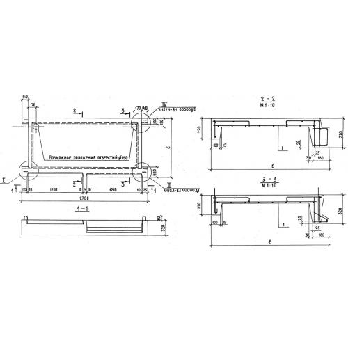
2ЛП 25.18

Чертеж изделия:
Характеристики изделия:
ПараметрЗначение
длина2780 мм
ширина1900 мм
высота320 мм
масса1500 кг
нормативный документСерия 1.152.1-8

2ЛП 25.18  Лестничные площадки ребристые  Серия 1.152.1-8.