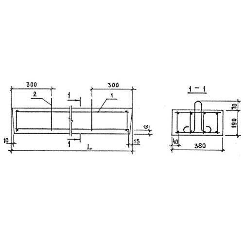
БП 27

Чертеж изделия:
Характеристики изделия:
ПараметрЗначение
длина2700 мм
ширина380 мм
высота190 мм
вес485 кг
серия1.139-1

БП 27 Плитные перемычки по серии 1.139-1.