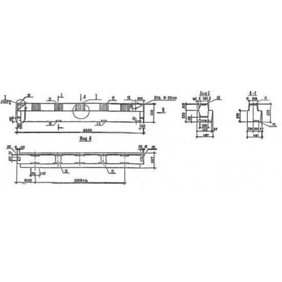
РОП 6.86 ригели
Характеристики изделия:
| Параметр | Значение |
|---|---|
| длина | 8560 мм |
| ширина | 497 мм |
| высота | 600 мм |
| масса | 5000 кг |
| нормативный документ | Серия 1.020-1/87 |
Цена:
Рассчитать стоимостьРОП 6.86 Ригели однополочные для опирания многопустотных плит покрытия Серия 1.020-1/87.